Bánréve, Borsod-Abaúj-Zemplén megye Eladó családi ház

Eladó kétszintes családi ház Bánrévén, közel a szlovák államhatárhoz!

Irány Ár: 29.000.000 Ft

Képzelje el, hogy egy zöldövezeti, csendes környezetben élhet, mindössze néhány percre a szlovák határtól!
Bánrévén, egy ideális családi ház várja, hogy otthonává váljon. Tökéletes választás azoknak, akik szeretnék élvezni a természet közelségét.

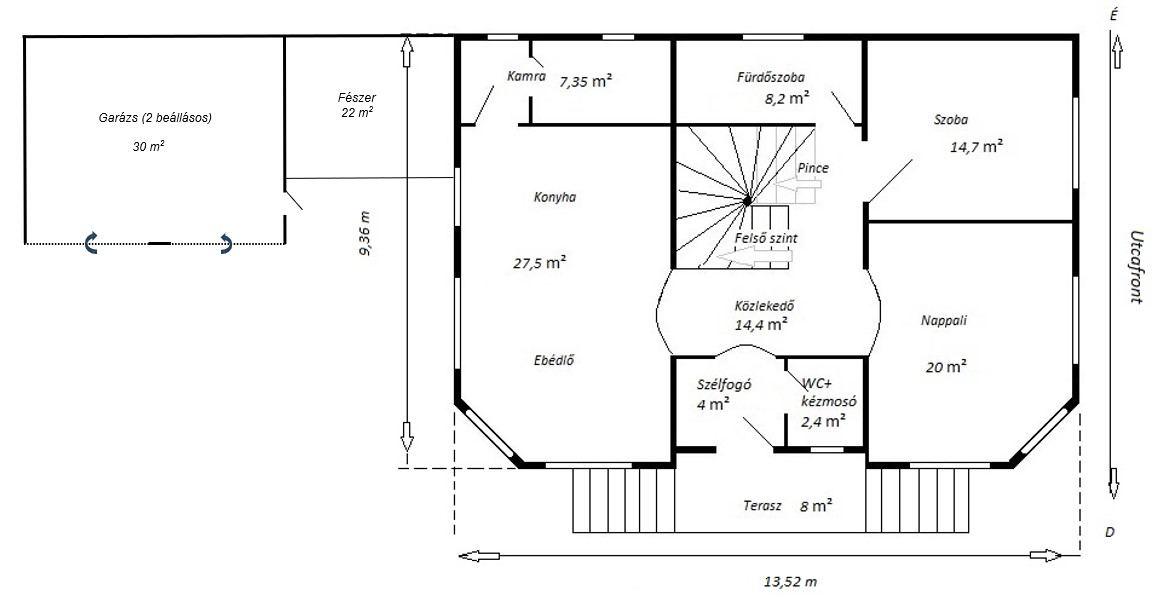
Telek mérete: 880 m²
Hasznos alapterület: 191 m²
Szobák száma: 5 + nappali
Tetőtér beépítéses

Főbb jellemzők:Építés éve: 1989-1992 Tetőfelújítás: 2010, lépésálló Rockwool kőzetgyapottal szigetelve, új mázas Creaton cserép.
Nyílászárók: Műanyag, hőszigetelt ablakok.
Fűtés: Vegyes tüzelésű kazán (2023 decemberi csere)
Meleg víz: Villanybojler
Konyha: Tágas, amerikai stílusú (27 m²)
Burkolatok: A szobák parkettásak, és szönyeggel borítottak, a falak festettek

Nagyméretű kamra, a ház 2/3-a alápincézett
Miért érdemes ezt választania?
A ház tágas terei, jól átgondolt elosztása és napfényes helyiségei kényelmes otthont biztosítanak.Az alápincézett rész további tárolási lehetőséget biztosít.
A rendezett telek és a csendes környezet ideális helyszínt ad a családi kikapcsolódásra.
A gázcsonk már a kerítésen belül található, így könnyen csatlakoztatható.
A szennyvízhálózat még nem épült ki az utcában, így az ingatlan saját szennyvízderítővel rendelkezik.
Környék és elhelyezkedés:
A ház egy nyugodt, zöldövezeti környezetben található, de közben könnyen elérhetők a mindennapi szükségletek: bolt, dohánybolt és lottózó és posta is a közelben.

A szlovák államhatár közelsége különleges lehetőségeket kínál.További információk: Az ingatlan per- és tehermentes, így gyorsan birtokba vehető.

Amennyiben hiteltanácsadásra lenne szüksége, bankfüggetlen hitelszakértőnk készséggel áll hagyja ki ezt a remek lehetőséget! Jöjjön el, és nézze meg személyesen ezt a tágas, napfényes otthont!

Ingatlan jó állapotú Építés éve 1981 és 2000 között Duplakomfortos Légkondicionáló nincs . Nem Akadálymentesített

Fürdő és wc külön és egyben is. Kilátás utca . Tetőtér beépített Pince van Parkolás önálló garázs - benne van az árban

Hívjon bizalommal! Köszönöm szépen

Onodi Csaba +36 30 - 136 - 4804

10 éves szakmai tapasztalattal rendelkezem az ingatlaneladás, -vétel és értékbecslés területén. Sikeres ügyletek és elégedett ügyfelek sora áll mögöttem. Számomra az ingatlanközvetítés nem csupán az eladásról vagy vásárlásról szól, hanem magas színvonalú, teljes körű szolgáltatást nyújtok ügyfeleimnek. Ha a megbízónak nincs lehetősége személyesen részt venni az ingatlaneladás minden lépésében, teljes körűen átvállalom az ügylet lebonyolítását. Intézem az ingatlan értékbecslését, energetikai felmérését, statikai vizsgálatát és épületdiagnosztikáját – mindent, ami az eladáshoz szükséges. Célom az ingatlanközvetítés innoválása, hogy minden ügyfél – legyen eladó vagy vevő – gyorsan, biztonságosan és maximális elégedettséggel intézhesse ügyeit. Szolgáltatásunk teljesen innovatív, ügyfeleinknek egyedülálló kényelmet nyújt, és ilyen komplex megoldás jelenleg még nincs a piacon. Önnek csupán az adásvételi szerződés aláírásán kell megjelennie, minden mást mi intézünk. Hívjon bátran, és tapasztalja meg, hogy velünk az ingatlanügyintézés egyszerű, gördülékeny és megbízható – mi vagyunk azok, akik valóban kiemelkednek a piacon.
Onodi csaba
Ingatlanközvetítő
Ingatlanvagyon-értékelő
📞+36 30 - 136 - 4804

Fedezd fel a Prémium Ingatlancentrum Kft. kínálatát! Prémium ingatlanok, profi közvetítés, személyre szabott tanácsadás – minden, amire szükséged van az ingatlanpiacon.”

Contact

Reset password

Enter your email address and we will send you a link to change your password.

Get started with your account

to save your favourite homes and more

Sign up with email

Get started with your account

to save your favourite homes and more

By clicking the «SIGN UP» button you agree to the Terms of Use and Privacy Policy
Powered by Estatik